手機看文章
碧水云天·新尊府預售許可證信息:(2019)晉商房預售同字第39號
本頁面的預售許可證信息為當前信息發布時所展示,僅供參考。最新信息請前往樓盤主頁查看。
摘要:隨著城市的不斷擴張,住宅區的距離越來越小,尤其是在新冠肺炎疫情過后,以花園洋房、小高層為主的低密住宅成為購房者關注的重點。在這樣的情況下,低密住宅顯得尤為可貴,那么低密住宅都有什么好處呢?
咨詢電話:400 876 0352 轉 0281
所謂低密,意味著更少的人群、更廣闊的空間、更豐富的自然景觀,具體體現在數字上就是低容積率,而采光性能好,通透性更佳可能就是對低密住宅最好的解釋。而低容積率帶來的不僅是人均享受更大面積的綠地,更提高了業主的私密性與安全性,以優美的小區環境,給業主舒適的享受。所以,越是繁華的地段,低容積率的產品也就越為難得。
以品質建筑,鑄就舒適家園,碧水云天·御花園與新尊府項目皆以花園洋房、小高層為主要建筑形態,正是當下大同樓市低密度住宅的代表之一。


御花園園林景觀


新尊府園林景觀
項目甄選多種樹木匠心造園,淬煉社區唯美畫境,打造綠意濃濃的新中式生態園林。其中小亭、石橋、游廊、水榭、等點綴在綠樹蔥蘢之中,水系發達,或蜿蜒曲折,引人入勝;或大氣磅礴,偉岸雄渾,形成一幅幅靈動秀美的美麗畫卷。讓購房者在賞心悅目的同時,感受天然氧吧帶來的清新、愜意之感。


碧水云天·御花園戶型圖
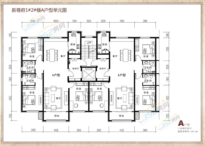
優美的園林景色令業主推窗即攔景,而設計合理的戶型結構,則讓業主居住在碧水云天的每一分鐘,都能盡享舒適空間。御花園與新尊府項目品質出眾,一脈傳承,戶型設計精良,布局動線合理,貼合大同本地購房者的居住習慣,構建南北通透、陽光滿室的恬逸空間,更有中西廚結合、入戶玄關等多重戶型滿足不同購房者的置業需求。
與此同時,碧水云天系列樓盤對大同購房者來說并不陌生,多年來埋頭深耕,為大同市民們帶來了不少品質好盤,御東碧水云天·御河灣、新河灣、御河苑,市區碧水云天·頤園、博雅府等,均受到了購房者與業內人士的一致好評,可見“碧水云天”樓盤的品質可靠,值得信賴。

于生態之間,匠筑低密、健康住宅,致敬大同品質生活,碧水云天·御花園、新尊府項目均已五證齊全,實景現房,讓您即買即住,買的放心,住的舒心,感興趣的朋友們可以前往接待中心進行詳細咨詢。
新尊府接待中心:大同市御東新區南環東路與太和路交匯處往南800米
御花園接待中心:大同市御東新區南環路與永安路交匯處西北角。