建設11棟樓!大同新盤—恒安壹號院規劃已出
發布時間:2023-03-24 來源:0352房網 編輯:RUI
手機看文章
摘要:大同新盤——恒安壹號院,項目建設規劃已公示,由S1居住地塊和S2商業地塊組成,規劃建設11棟住宅樓,3棟商業樓!
咨詢電話:400 876 0352 轉 0000
項目名稱:恒安壹號院項目
建設單位:大同恒安祥置業有限公司
設計單位:國建工程設計有限公司
項目位置:大同經濟技術開發區現代服務產業園區

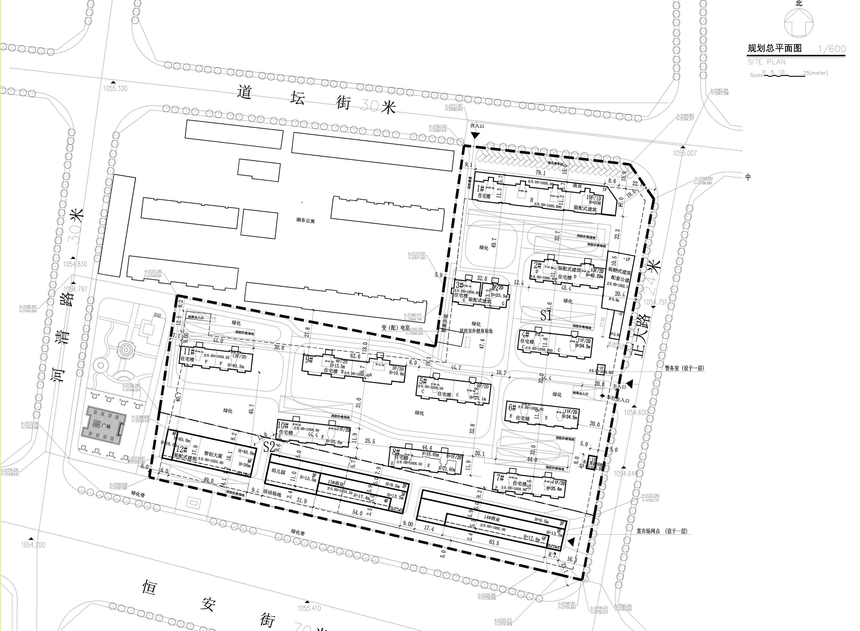
規劃圖
用地面積:S1:35795㎡,S2:10849㎡
建筑面積:S1:99964㎡,S2:26121㎡
建筑密度:S1:20%,S2:34.1%
容 積 率:S1:1.99,S2:1.99
綠 地 率:S1:35%,S2:20%
停 車 位:S1:535個,S2:171個

平面布置圖

位置圖
恒安壹號院位于大同市恒安街與河清路交匯處東北角,由大同恒安祥置業公司開發,目前僅公示了建設規劃許可公示,其余信息尚未釋放。0352房網將持續跟蹤并播報恒安壹號院相關動態,敬請關注!