商業+酒店!大同西京公館建設規劃許可公示
發布時間:2023-03-09 來源:0352房網 編輯:RUI
手機看文章
摘要:大同御東新區新增商業樓盤—西京公館,建設項目規劃許可已公示,涵蓋一棟酒店和一棟商業樓,具體規劃如下。
咨詢電話:400 876 0352 轉 0000
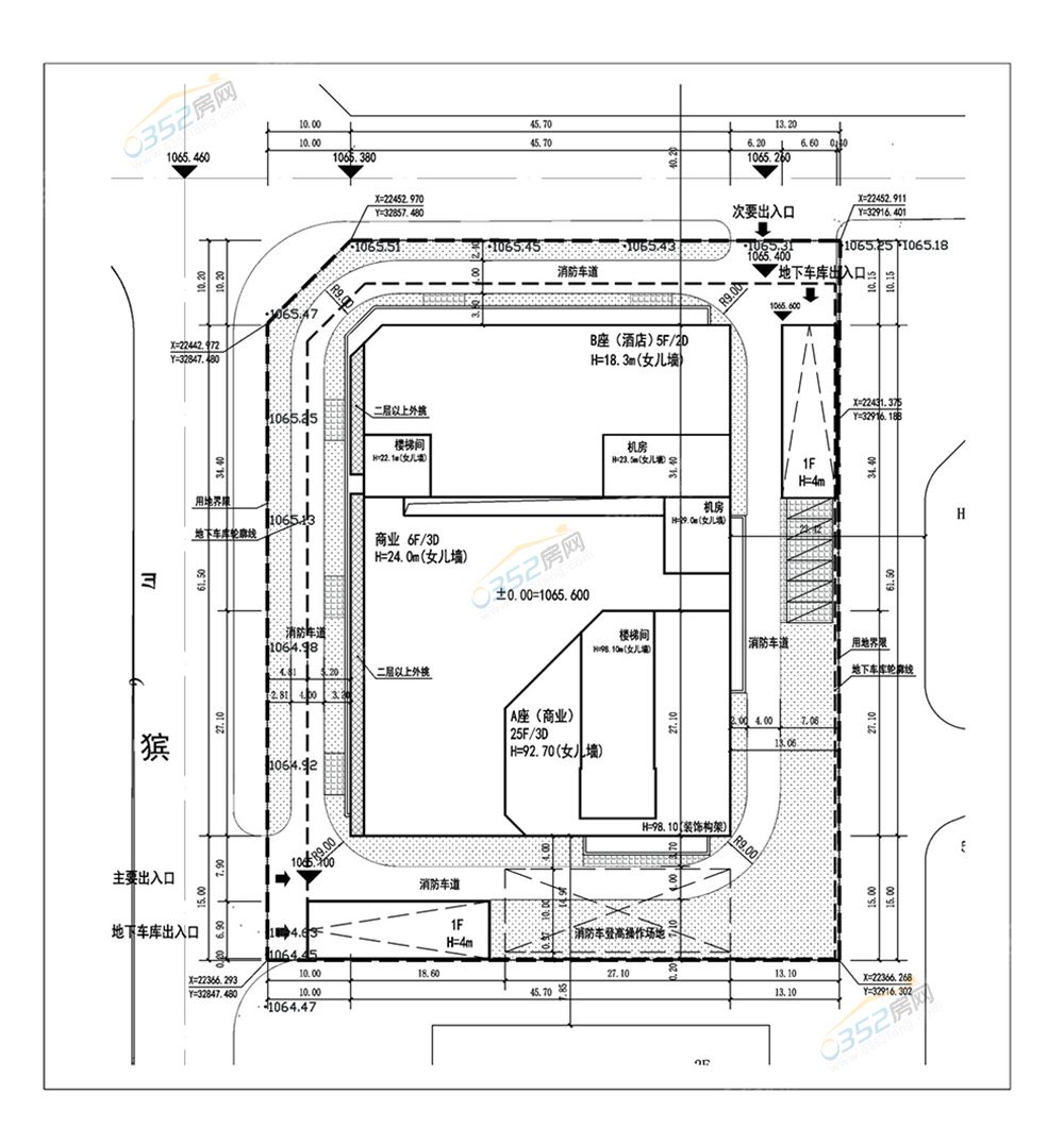
項目名稱:西京公館
建設單位:大同市正源置業有限責任公司
設計單位:中外建工程設計與顧問有限公司

規劃圖

總平面圖
規劃用地面積:5908.73平方米
總建筑面積:41595.88平方米
地上建筑面積:28723.64平方米
地下建筑面積:12872.24平方米
容積率:4.87
建筑密度:48.86%
停車位:683輛
地上停車位:6輛
地下停車位:677輛
綠地率:20.01%


效果圖
以上就是西京公館的項目建設規劃了!目前,西京公館尚未建設售樓部,其余信息暫未釋放,0352房網將持續跟蹤并報道,敬請關注!