大同新盤碧水云天·御源府 項目規劃公示已出
發布時間:2022-02-21 來源:0352房網 編輯:鄭倩
手機看文章
碧水云天·御源府預售許可證信息:(2022)晉商房預售同字第15號
本頁面的預售許可證信息為當前信息發布時所展示,僅供參考。最新信息請前往樓盤主頁查看。
摘要:據相關網站公告,碧水云天御源府項目規劃已出,詳細情況整理如下。
咨詢電話:400 876 0352 轉 0263
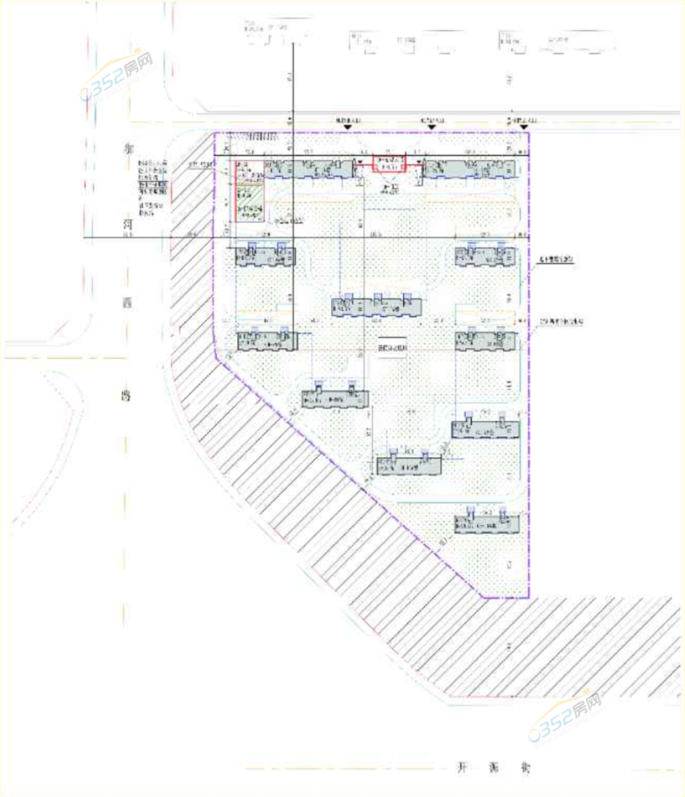
據小編整理,碧水云天御源府項目詳細規劃如下:

公示圖

總平面布置圖

日照平面等時線圖

項目規劃指標
碧水云天·御源府位于大同市御河西路東側,由大同市華瑞集團進行開發建設,共建11棟住宅樓,以小高層與洋房為主,容積率為1.49,囊括建面約125-143㎡精工戶型,現沙盤與戶型圖均已到位售樓部。更多樓盤信息,敬請關注0352房網!