手機看文章
睿和云端預售許可證信息:(2022)晉商房預售同字第36號
本頁面的預售許可證信息為當前信息發布時所展示,僅供參考。最新信息請前往樓盤主頁查看。
摘要:日常的繁瑣和壓力,不影響我們對生活的熱愛,也不影響對于幸福的向往,正在商議婚事的你們,在大同要怎么選擇一個合適的婚房呢?
咨詢電話:400 876 0352 轉 0343
在大同,迎賓橋畔便有這樣一個樓盤,享受著城市主干道的便利位置,有著成熟的住宅建筑與物業管理經驗,戶型建面約125-272㎡(部分戶型面積包括底躍),可以滿足大多數人的置業需求,這就是睿和云端,一個為愛而來,用愛筑家的地方。

活動現場

實景圖
現睿和云端“520愛你婚房節”活動仍在進行中,活動福利僅剩3天結束,適齡青年購房可額外享受家電三件套以及婚戀大禮包!
(活動時間截止至5月28日)

婚戀禮包詳情
我們在選擇婚房的時候,應該要注意哪些呢?
第一,選擇一個合適的位置,婚房的位置要考慮到兩個人工作地點的遠近,要是太遠的話,通勤時間和金錢成本都會增加。

城市公共資源配套
睿和云端位于大同平城區御河畔,直接面對城市兩大主干道,可以為業主帶來便利的交通條件,讓通勤的路上不再煩惱。

區位圖
第二,選擇一個戶型范圍適中的樓盤,這樣公共資源就不會出現短缺,高峰時間上下樓也不會出現電梯遲遲不來的情況。
睿和云端戶型面積范圍,可以滿足大多數婚房置業群體的同時,也在一定程度上控制了實際的居住人數,在后期居住的時候,也不會因為居民太多而產生其他的生活煩惱。

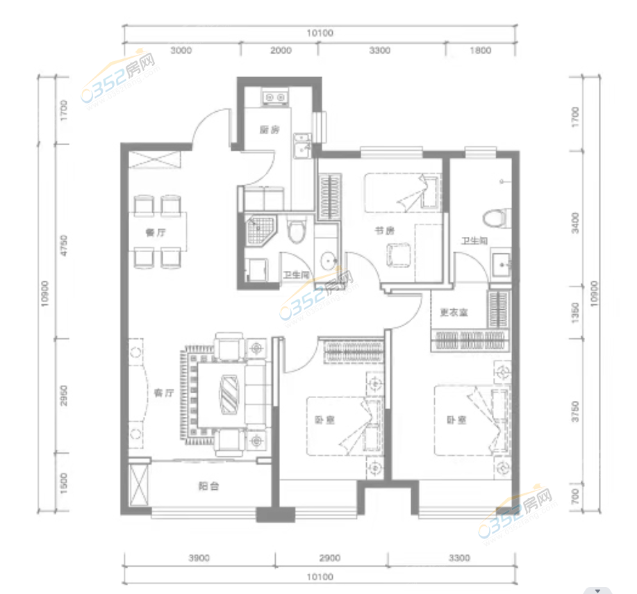
戶型圖
第三,選擇一個有前期產品的開發商和物業,不僅能給未來住戶提供現成的樣本參考,更有成熟的維護經驗,減少后續入住的很多瑣事煩惱。
睿和云端的開發商——睿和興業已經在大同建造有睿和錦城、睿和新城兩大品質住宅,現有的維護經驗,將有助于睿和云端得到更多的成長。
第四,制定一個未來的生活計劃,例如怎么進行首付和貸款,以后要生幾個小孩,是否要把父母接過來同住等,這些問題都可以在選擇的時候進行參考。
就算是不同的生活計劃,在睿和云端多樣化的設計里,都可以讓不同置業需求的業主找到合適的房子。
第五,盡量選擇新房,置辦的手續會簡單一些,就算是后期想要改善和置換,新房也會因為房齡較短而更容易找到下家。
睿和云端作為大同新一代品質住宅,將于2023年底以完全體交付,屆時那個房子也將會被滿載的愛意填滿,成為一個真正的家。

效果圖
您想要的,也許都能在睿和云端找到答案,現甜蜜三居火熱銷售中,誠邀您的蒞臨品鑒!
品鑒地址:大同市平城區御河東路與恒安街交匯東南角