特價房低至78折 年中鉅惠僅剩2天 拼手速時候到了
發布時間:2020-06-29 來源:0352房網 編輯:謝明亮
手機看文章
恒大悅府預售許可證信息:(2019)晉商房預售同字第22號 (2020)晉商房預售同字第65號
本頁面的預售許可證信息為當前信息發布時所展示,僅供參考。最新信息請前往樓盤主頁查看。
摘要:年中大沖刺,特大優惠僅剩2天!大同恒大悅府,年中大沖刺,鉅惠六重禮。
咨詢電話:400 876 0352 轉 0271
一重禮:特價房低至78折
二重禮:網上購房2000元抵2萬
三重禮:一次性93折
四重禮:購房享額外96折
五重禮:分期付款首期10萬起
六重禮:到訪享豪禮
國風園林 生態美境
恒大悅府自建約24000㎡國風園林,中心景觀約2200㎡湖景,愜意湖居,樂享生活每一天。

鉑金會所 格調生活
匠心打造約1000㎡鉑金會所,配套恒溫游泳池、健身房、桌球室等,既滿足休閑娛樂又滿足圈層社交,讓業主們盡享格調生活。

繁華商業 邂逅潮流
項目自建約4000㎡風情商業街,滿足業主吃喝玩樂購等繽紛需求,出門即享一站式生活體驗。

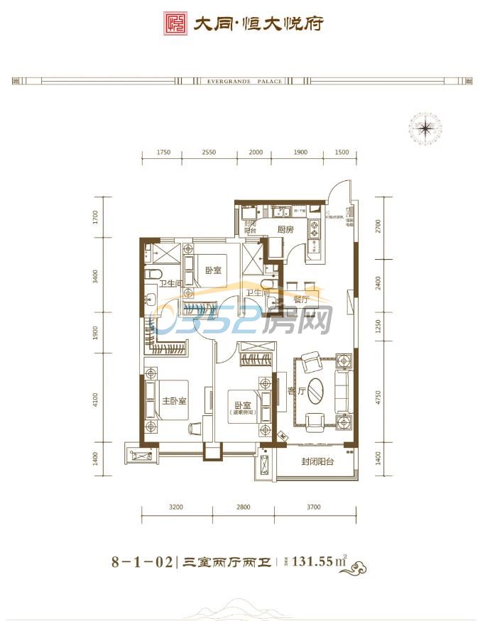
戶型賞析


