手機看文章
摘要:據相關網站公告,大同永泰南路新增城建設施,老干部教育活動中心建設選址公示,詳情整理如下。
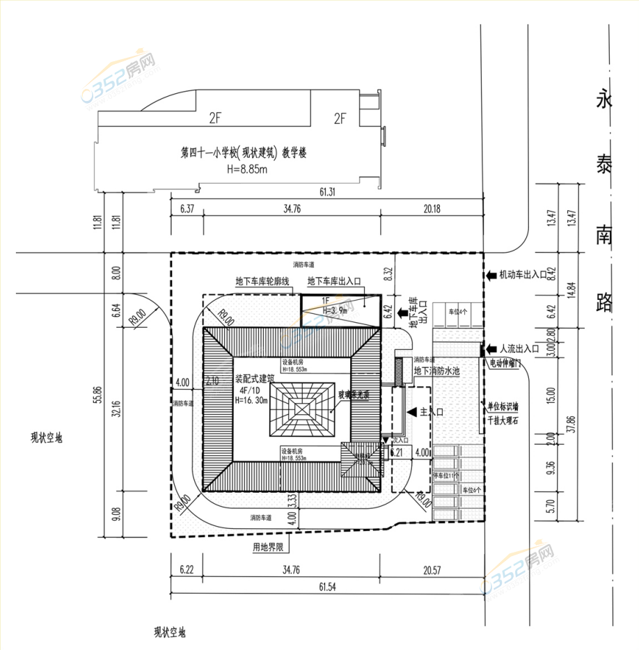
建設項目規劃許可公示牌
同審規公示字2022034號

項目名稱:大同市平城區老干部教育活動項目
建設單位:中共大同市平城區委老干部局
設計單位:中外建工程設計及顧問有限公司
項目地址:大同市永泰南路西側,南鄰永泰大廈,北鄰四十一校

規劃總平面布置圖

日照分析圖

效果圖
規劃用地面積:3341.5平米
總建筑面積:5898.51平米
地上建筑面積4373.34平米
地下建筑面積1525.17平米
容積率:1.309
建筑密度:34.94%
停車位:44輛
綠地率:20.03%

實景圖
為加強建設工程的監督管理,維護社會公眾利益,根據城鄉規劃法律法規的有關規定,現將擬批準的“大同市平城區老干部教育活動項目”規劃審批情況予以公示,如有不同意見,請于7個工作日及時向我局反映。
規劃監督電話:7939399/7982060
上午 9:00-12:00,下午13:00-17:00
公示時間:2022年6月23日-7月1日
大同市行政審批服務管理局
項目建設面積以審批的總平面圖為準
以上就是本次公示的全部內容了,室內活動建筑的增設,為多數有需求的老人們提供了冬暖夏涼的活動場地,據小編實景勘察發現,該項目正在做內部的二次結構,預計將在今年完成大部分建設。更多大同城建規劃信息,感興趣的網友可以前往“城建規劃”分頁查看。