號外!大同總部壹號項目規劃公示新鮮出爐!
發布時間:2021-10-28 來源:0352房網 編輯:劉哲
摘要:小伙伴們注意啦!大同經開區新項目——總部壹號規劃公示信息新鮮出爐!詳細情況如下:

項目規劃公示圖

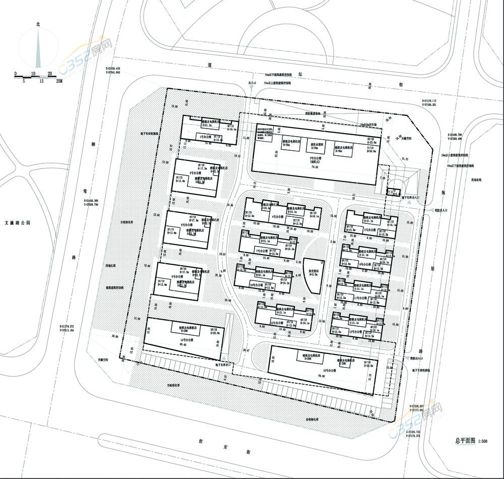
項目總平圖

項目控規內容

項目大體位置
從規劃信息來看,該項目位于大同市恒安街與柳鶯路交匯處東北角,由大同市悅洲置業有限責任公司開發建設,旨在為企業打造定制專屬的總部辦公樓,共規劃建設有15棟辦公樓。
以上就是小編為大家帶來的大同市經開區新鮮出爐的項目規劃信息,更多樓市動態,請登錄0352房網~