大同市國際會展中心建設項目規劃已公示!
發布時間:2019-08-27 來源:大同規劃和自然資源局 編輯:Rui
手機看文章
摘要:2019年8月27日,大同市規劃和自然資源局公示大同市國際會展中心建設項目規劃許可,快來一睹為快吧!
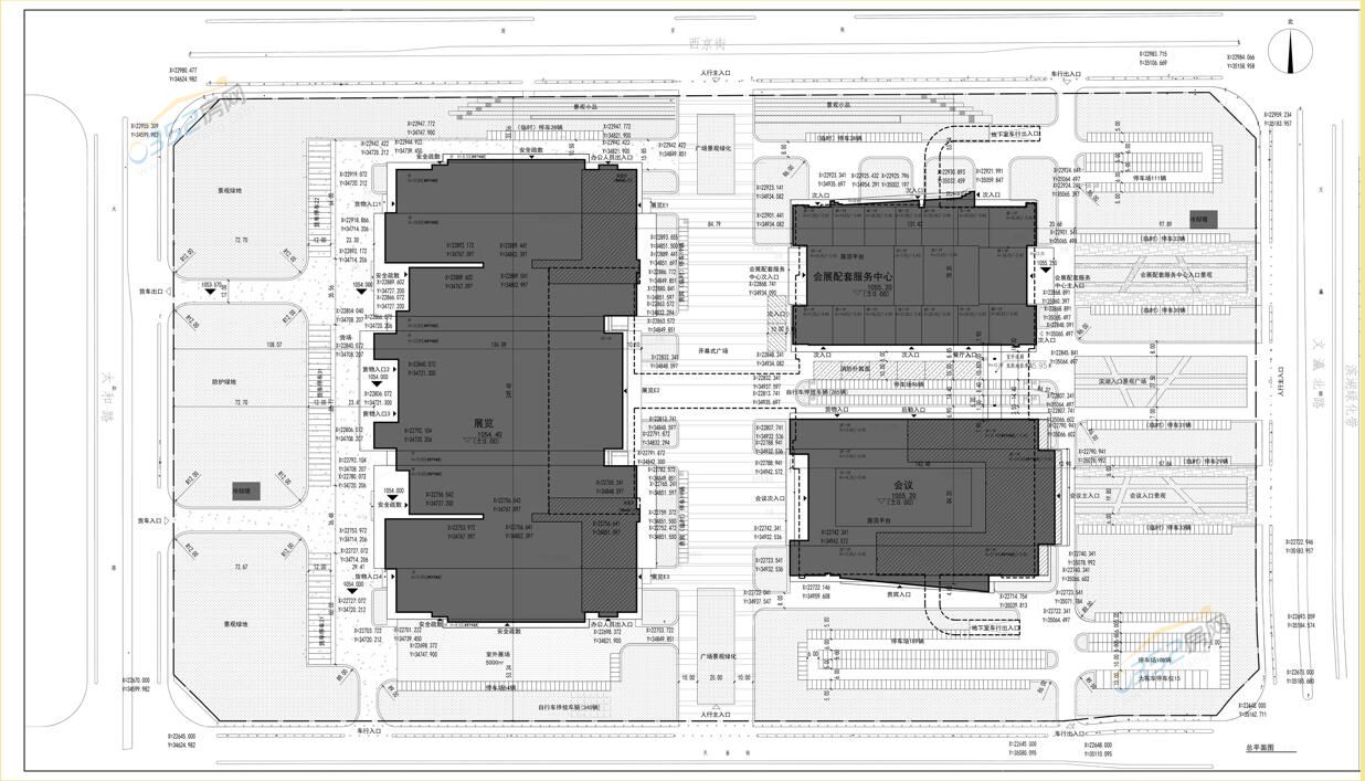
項目名稱:大同市國際會展中心項目
建設單位:大同市市政建設發展有限公司
設計單位:中國建筑設計研究院有限公司
項目位置:大同市西京街南側地塊
用地面積:195539㎡
建筑面積:129915㎡
建筑密度:26.9%
容積率:0.49
綠地率:35%
停車位:1299
以下是大同市國際會展中心項目總平面布置圖和控制性詳細規劃:


控制性詳細規劃

總平面布置圖
以上就是大同市國際會展中心建設項目的具體規劃!