大同市實驗小學東校區新建項目規劃出爐啦!
發布時間:2019-05-11 來源:大同城鄉規劃局 編輯:Rui
手機看文章
摘要:大同市實驗小學作為大同屈指可數的優質小學,一直以來都收到廣大家長的認可和追捧。為了滿足學生對優質教育的需求,大同市新建實驗小學東校區項目,目前項目規劃已出爐,快來一睹為快吧!
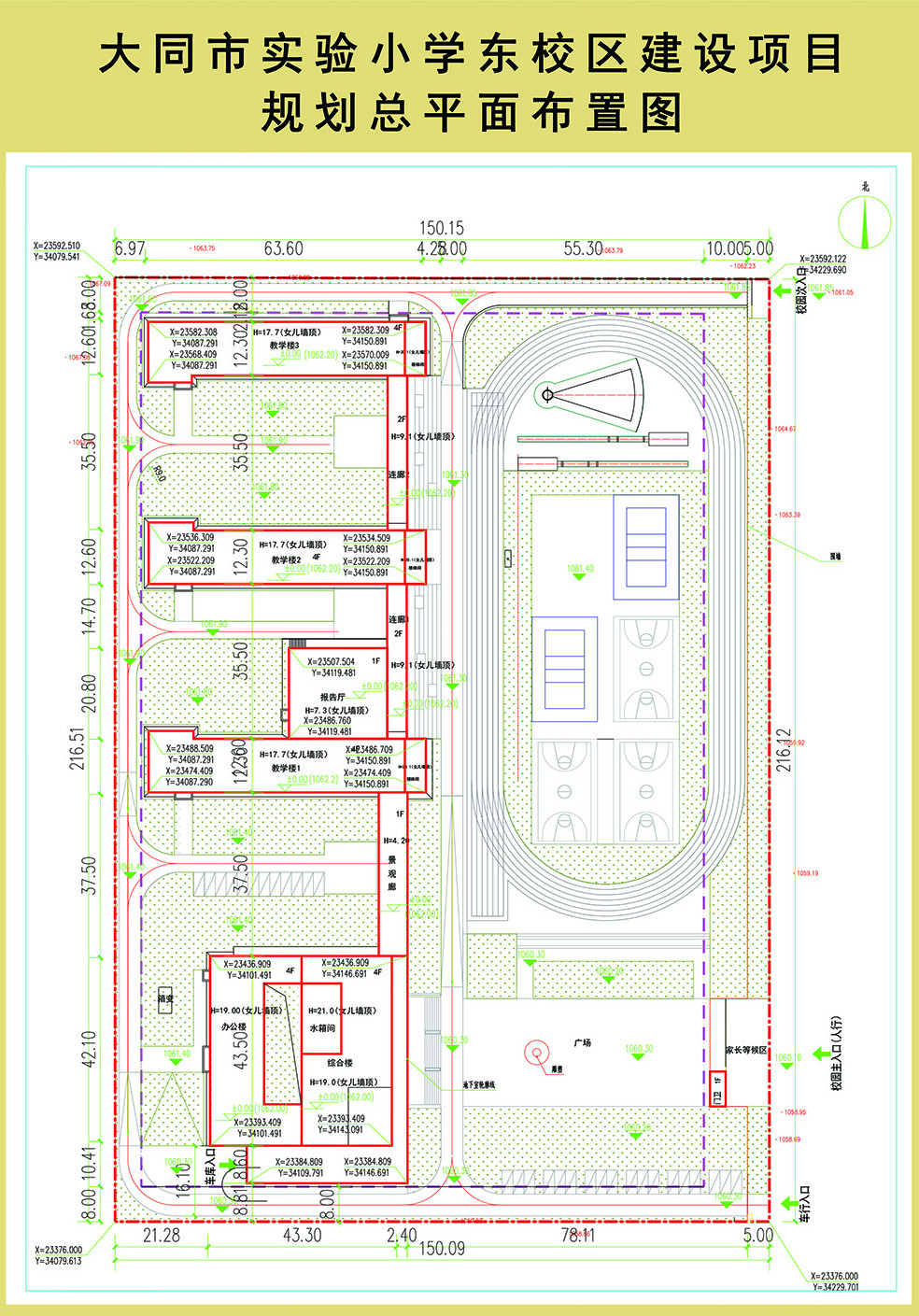
大同市實驗小學東校區新建項目位于大同市御東新區鴻儒小區東側,永固街南側。項目總占地面積32471.86㎡,總建筑面積19660.87㎡,其中包括綜合樓、辦公樓、3棟教學樓、報告廳、連廊和門衛,項目容積率0.54,綠地率35%,建筑密度17.68%,機動車停車位74輛。

位置圖
以下就是大同市實驗小學東校區新建項目的規劃公示:

總平面布置圖

日照等時線
大同市實驗小學東校區新建項目的建設,將有效緩解御東新區教育資源緊缺的現狀,滿足周邊小區居民對優質教育的需求。目前,大同市實驗小學東校區新建項目已于2019年4月23日開工建設,期待早日建成投入使用!