-
觀瀾灣
銷售電話:400 876 0352 轉 0334
開盤日期:2022年
售樓地址:大同市南環路與正大路交匯處東南角
御東 在售現房 普通住宅低密居所高鐵樓盤
- 最新動態
- 東騰觀瀾灣項目二期最新工程進度新鮮出爐! [2023-04-25] 大同御東觀瀾灣二期項目主體建設基本完畢 [2023-03-21] 觀瀾灣一期實景現房出售 戶型建面約85-136㎡ [2022-12-17]
- 樓盤詳情
-
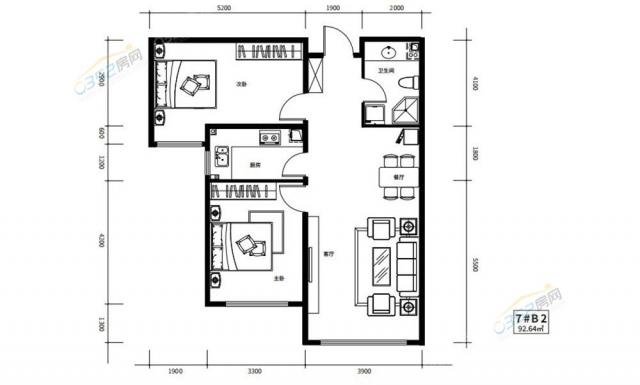
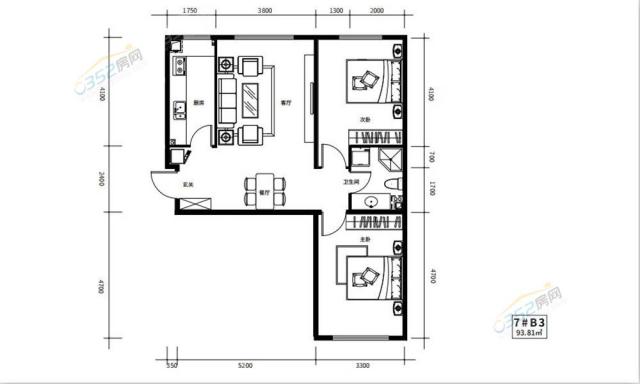
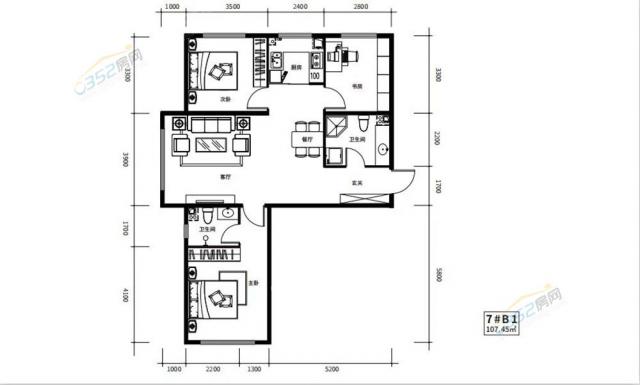
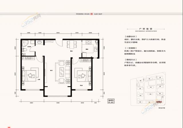
開盤時間2022年交房時間2021年年底(具體交房時間以合同為準)付款方式支持一次性付款、貸款和公積金,首付30%,全款97折貸款99折。物業類型普通住宅建筑類別小高層裝修狀況毛坯建筑面積185755㎡占地面積66106.67㎡住戶數1266得房率75-80%容積率2.18綠化率35.1%停車位待定戶型區間建面約85-136㎡樓棟數量12棟周邊學校大同市實驗中學交通路線市區乘坐61路在大同藝校站下車即到。開發商大同東騰房地產開發有限公司預售許可(2022)晉商房預售同經開區字第1號物業公司待定物業費待定樓盤介紹
觀瀾灣位于大同市南環路與柳鶯路交匯處東南角,由大同東騰房地產開發有限公司開發建設。項目總占地面積66106.67㎡,總建筑面積185755㎡,綠地率35.1%,容積率2.18。
- 主力戶型
-
- 樓盤點評
-
二期開始賣了嗎游客30個月前
-
二期啥進展游客38個月前
-
一期還有房嗎游客39個月前
展開





